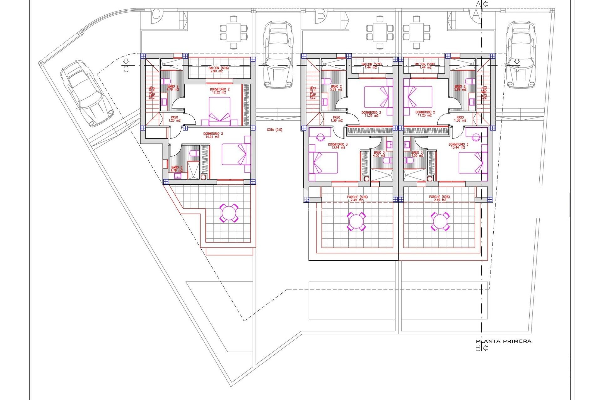
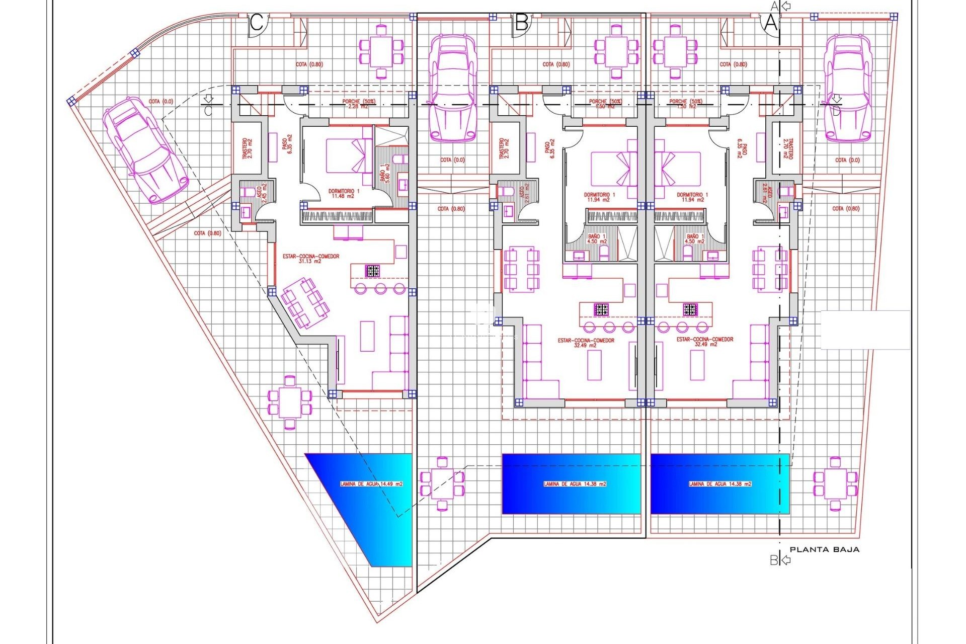
Neubau-Villen mit privatem Pool in Daya Nueva, Costa Blanca Moderne Doppelhaushälften und freistehende Villen mit ausgezeichnetem Design Entdecken Sie diese exklusive Anlage mit drei neu gebauten Doppelhaushälften und freistehenden Villen im charmanten Dorf Daya Nueva im Süden der Provinz Alicante. Diese stilvollen Immobilien wurden mit Blick auf Komfort, Licht und Privatsphäre entworfen und bieten ein außergewöhnliches Wohnerlebnis nur wenige Minuten von den Stränden von La Marina und Guardamar del Segura entfernt. Jede Villa verfügt über einen hellen und geräumigen Wohn-Essbereich, eine offene Küche mit Frühstückstheke, drei Schlafzimmer, drei Badezimmer und ein Gäste-WC. Genießen Sie das mediterrane Klima auf den beiden oberen Terrassen, entspannen Sie sich an Ihrem privaten Swimmingpool oder parken Sie bequem auf Ihrem eigenen Grundstück. Komfort und Qualität bis ins Detail Diese Häuser wurden so konzipiert, dass sie viel Tageslicht hereinlassen und das Leben im Freien maximieren. Zu den wichtigsten Merkmalen gehören: Privater Swimmingpool und Parkplatz auf dem Grundstück Zwei nicht überdachte Terrassen im Obergeschoss Optionales Solarium auf dem Dach für zusätzlichen Platz im Freien (gegen Aufpreis) Komplett eingerichtete Badezimmer mit Duschwänden Pre-Klimaanlage Automatische Aluminiumrollläden in Schlafzimmern, Küche und Badezimmern Das offene Erdgeschoss verbindet Küche, Essbereich und Wohnzimmer zu einem zusammenhängenden und hellen Wohnraum, der direkt zur Terrasse und zum Poolbereich führt – ideal zum Entspannen oder für gesellige Stunden. Erstklassige Lage in der Nähe aller Annehmlichkeiten Diese Villen liegen in einer ruhigen Wohngegend von Daya Nueva, nur 3 Gehminuten vom Dorfzentrum entfernt, wo Sie Geschäfte, Restaurants und alle wichtigen Dienstleistungen finden. Diese ruhige Umgebung bietet eine ideale Mischung aus dörflichem Charme und der Annehmlichkeiten der Küste. Entfernungen zu wichtigen Sehenswürdigkeiten: Strände von Guardamar del Segura und La Marina: 12 km (10 Minuten) La Marquesa Golf (Ciudad Quesada): 9 km (10 Minuten) Einkaufszentrum Habaneras (Torrevieja): 20 km (20 Minuten) Internationaler Flughafen Alicante: 38 km (25 Minuten) Krankenhaus Vega Baja: 14 km (15 Minuten) Ihr ideales Zuhause an der Costa Blanca wartet auf Sie Diese Villen eignen sich perfekt als Dauerwohnsitz, Ferienrückzugsort oder als Investition. Mit ihrer modernen Architektur, dem durchdachten Design und der ruhigen, aber gut angebundenen Lage bieten sie eine einzigartige Gelegenheit, ein hochwertiges Zuhause an der Costa Blanca zu erwerben. Kontaktieren Sie uns noch heute für weitere Informationen und um einen Besichtigungstermin zu vereinbaren. 270