Orihuela Costa · Lomas de Cabo Roig Apartamento / piso · Obra nueva · #NB-50886

Orihuela Costa · Lomas de Cabo Roig Apartamento / piso · Obra nueva · #NB-50886

  • Metros
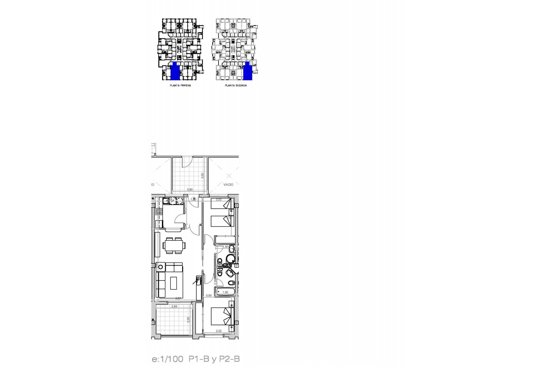
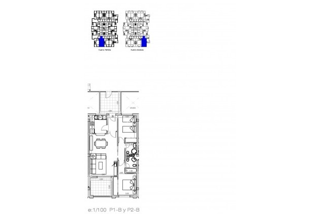
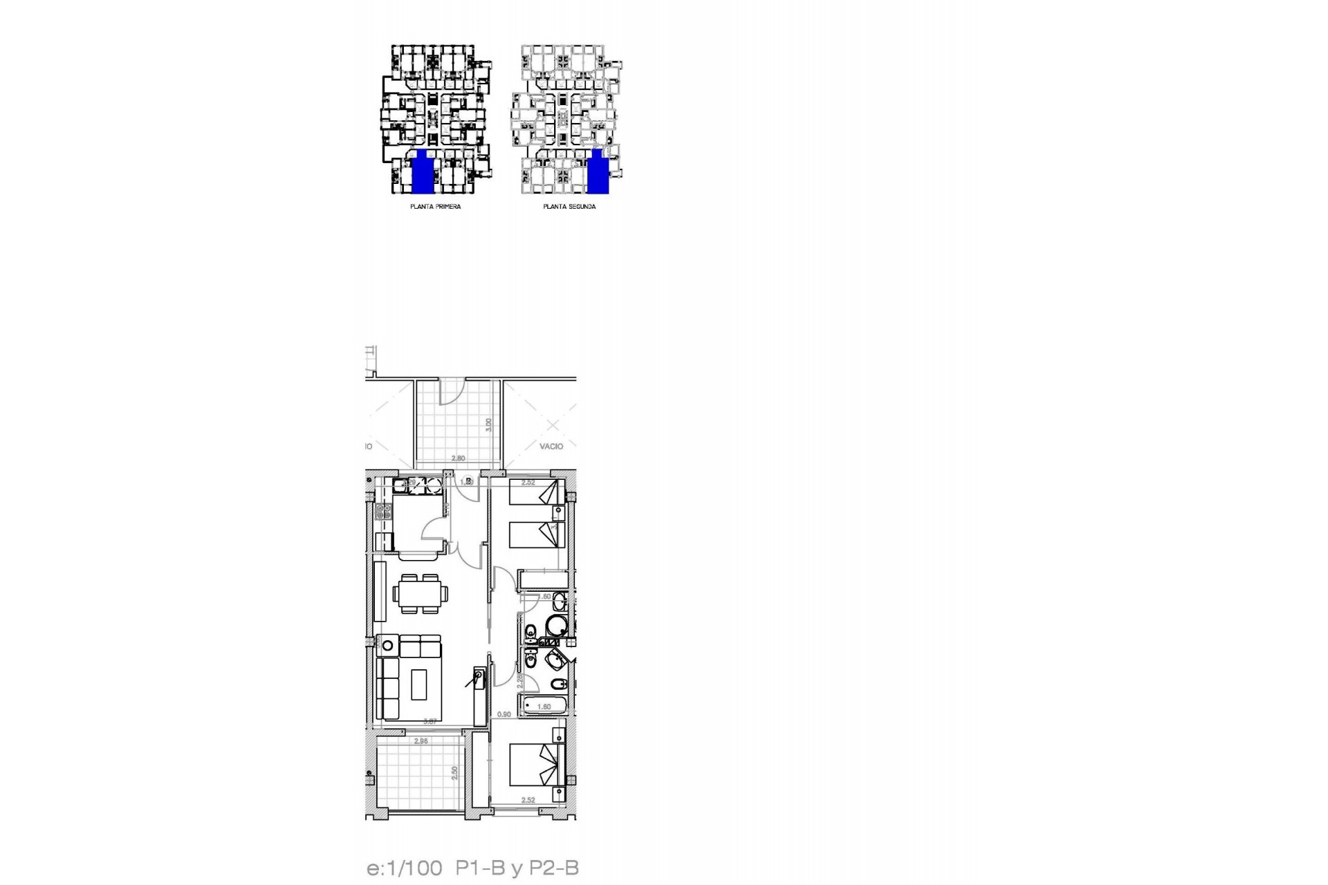
    69m2
  • Habitaciones
    2
  • Baños
    2
  • Piscina

Descripción

Características

Habitaciones: 2
Baños: 2
Construidos: 69m2
Piscina:
Calificación energética: F
Gated
Near Schools
Near Commercial Center
Elevator/Lift
Communal Pool
Beach: 2000 Meters
Location: Coastal, Urbanisation
Double Bedrooms: 2
Near Trees
Key Ready
Useable Build Space: 60 Msq.
Terrace: 17 Msq.
Parking - Space

Localización

JJ Properties Logo

Pedir información

Responsable del tratamiento: Jose Joaquín García López, Finalidad del tratamiento: Gestión y control de los servicios ofrecidos a través de la página Web de Servicios inmobiliarios, Envío de información a traves de newsletter y otros, Legitimación: Por consentimiento, Destinatarios: No se cederan los datos, salvo para elaborar contabilidad, Derechos de las personas interesadas: Acceder, rectificar y suprimir los datos, solicitar la portabilidad de los mismos, oponerse altratamiento y solicitar la limitación de éste, Procedencia de los datos: El Propio interesado, Información Adicional: Puede consultarse la información adicional y detallada sobre protección de datos Aquí.

Ver todas las propiedades

WhatsApp