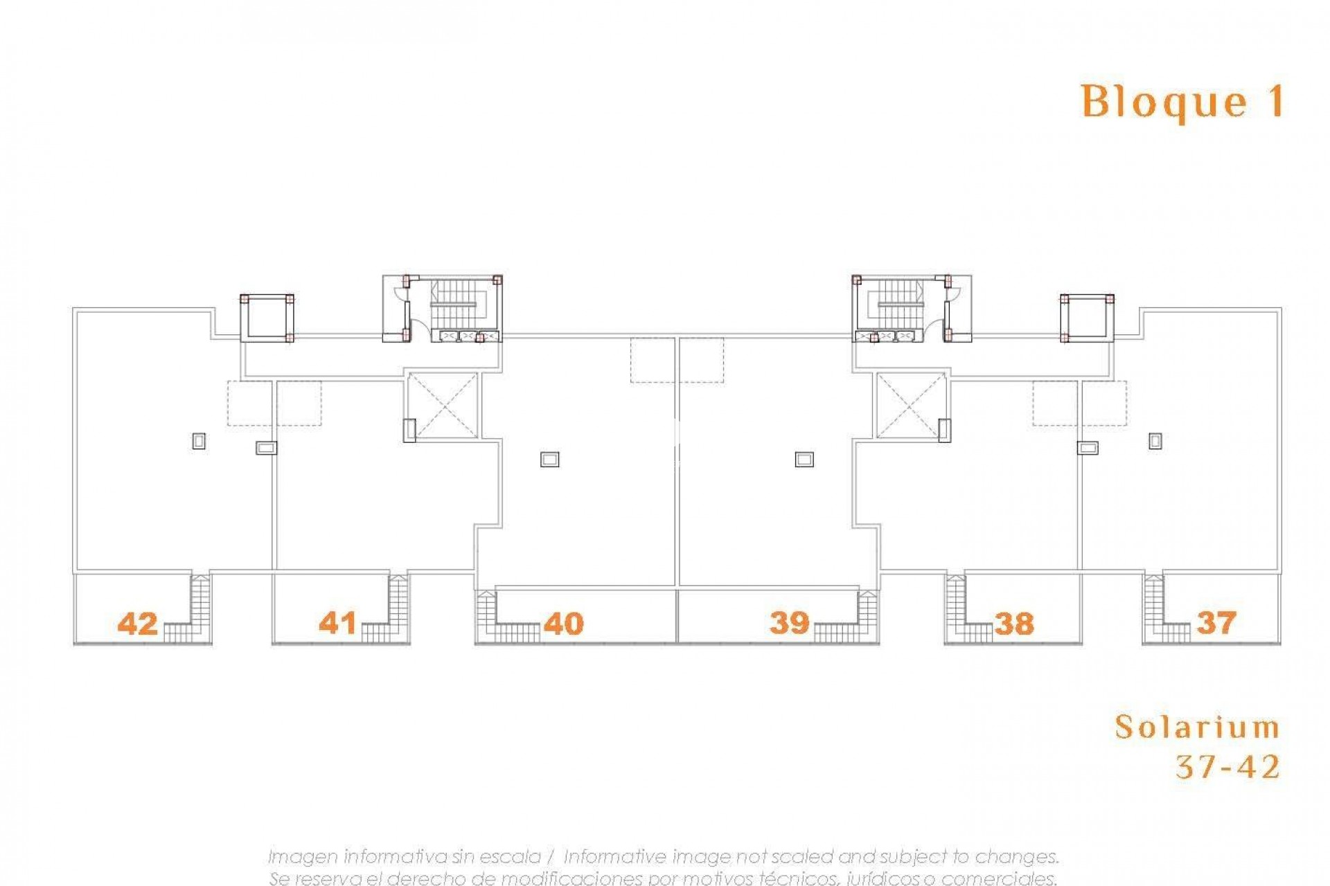
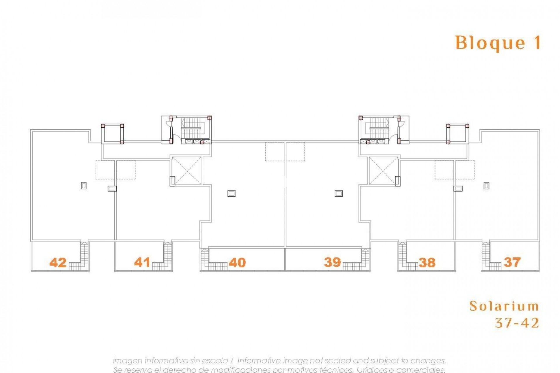
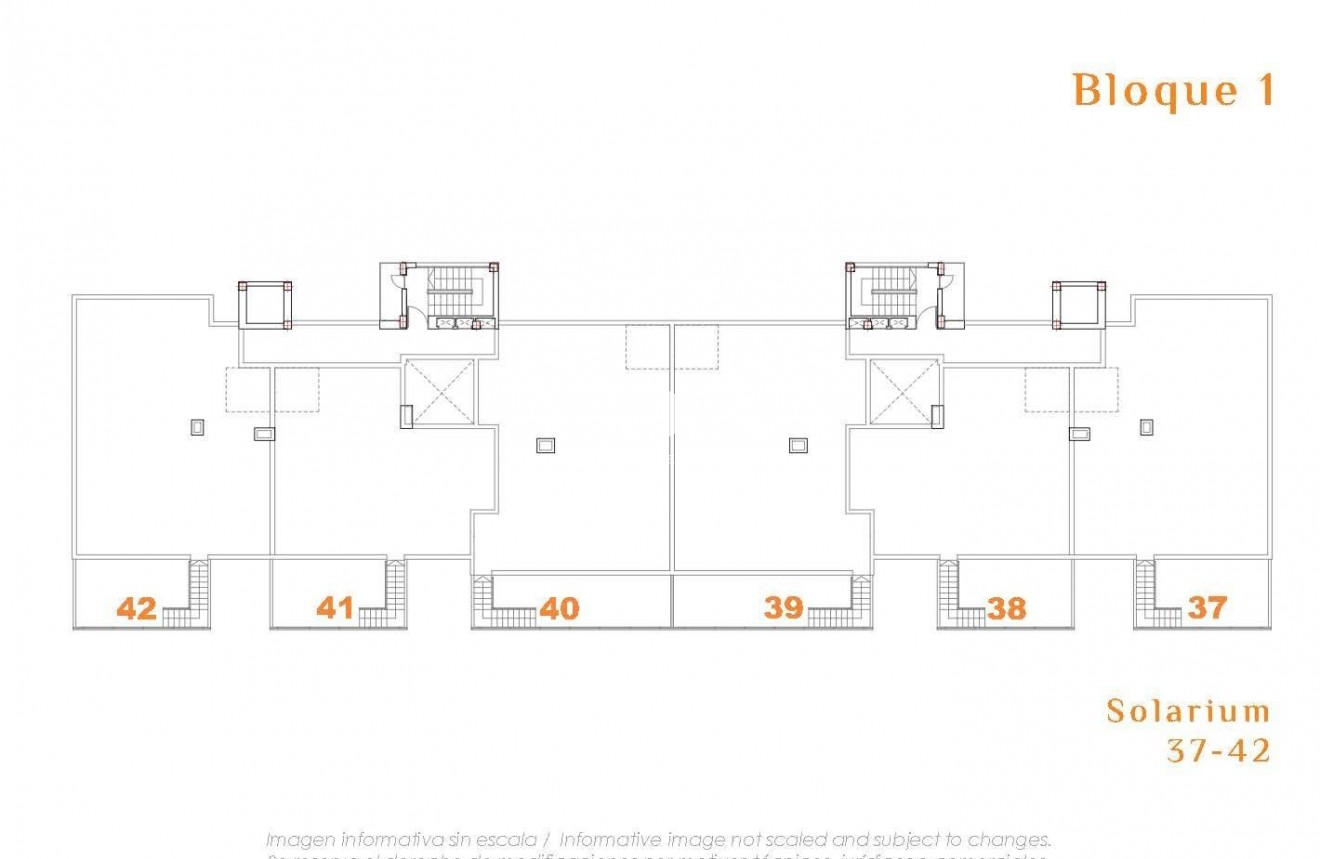
Nueva Promoción Residencial en San Miguel de Salinas Exclusivos Apartamentos en un Entorno Natural Único Descubra esta nueva promoción en San Miguel de Salinas, un residencial exclusivo compuesto por 5 bloques de apartamentos con amplias zonas comunes, diseñadas para ofrecer confort y calidad de vida. Este complejo cerrado cuenta con un espectacular jardín comunitario de casi 10.000 m², distribuido en tres niveles e integrado con tres piscinas comunitarias, rodeadas de césped natural y una cuidada selección de árboles y plantas. Las viviendas han sido diseñadas para aprovechar la luz natural y las vistas despejadas, ofreciendo una opción ideal tanto como segunda residencia como para vivir todo el año. Tipos de Viviendas Disponibles En este exclusivo residencial, podrá elegir entre: Plantas bajas con amplios jardines privados. Plantas intermedias con terrazas de más de 20 m². Áticos con terrazas y solárium privado en la azotea. Actualmente está disponible el Bloque 1, compuesto por 42 viviendas con una excelente relación calidad-precio. Calidades y Equipamiento de Primer Nivel Todas las viviendas se entregan con un completo equipamiento, incluyendo: Electrodomésticos incluidos en la cocina. Baños completamente equipados, con muebles, mamparas y sistema de iluminación LED. Instalación completa de aire acondicionado por conductos. Plaza de garaje y trastero incluidos en el precio. Además, disponemos de pisos piloto en otro proyecto similar, para que pueda conocer la calidad de los acabados antes de la entrega. Ubicación Estratégica en la Costa Blanca San Miguel de Salinas es una encantadora localidad en la comarca de la Vega Baja del Segura, a solo unos minutos de las mejores playas y campos de golf de la Costa Blanca. Rodeado de un entorno natural privilegiado, el municipio ofrece un ambiente tranquilo y todos los servicios esenciales, como supermercados, restaurantes, centros de salud y colegios. Distancias a los Principales Puntos de Interés Campos de Golf Las Colinas y Campoamor – 7 km. Playas de Orihuela Costa y Torrevieja – 10 km. Centro Comercial Zenia Boulevard – 9 km. Aeropuerto de Alicante – 50 km. Aeropuerto de Murcia-Corvera – 55 km. Su Nuevo Hogar le Espera en San Miguel de Salinas Tanto si busca una inversión en la Costa Blanca como una vivienda para disfrutar todo el año, esta promoción ofrece una combinación perfecta de lujo, comodidad y ubicación inmejorable. Contáctenos hoy mismo para más información y para programar una visita. 270