Orihuela Costa · Playa Flamenca Apartamento / piso · Obra nueva · #NB-26631

Orihuela Costa · Playa Flamenca Apartamento / piso · Obra nueva · #NB-26631

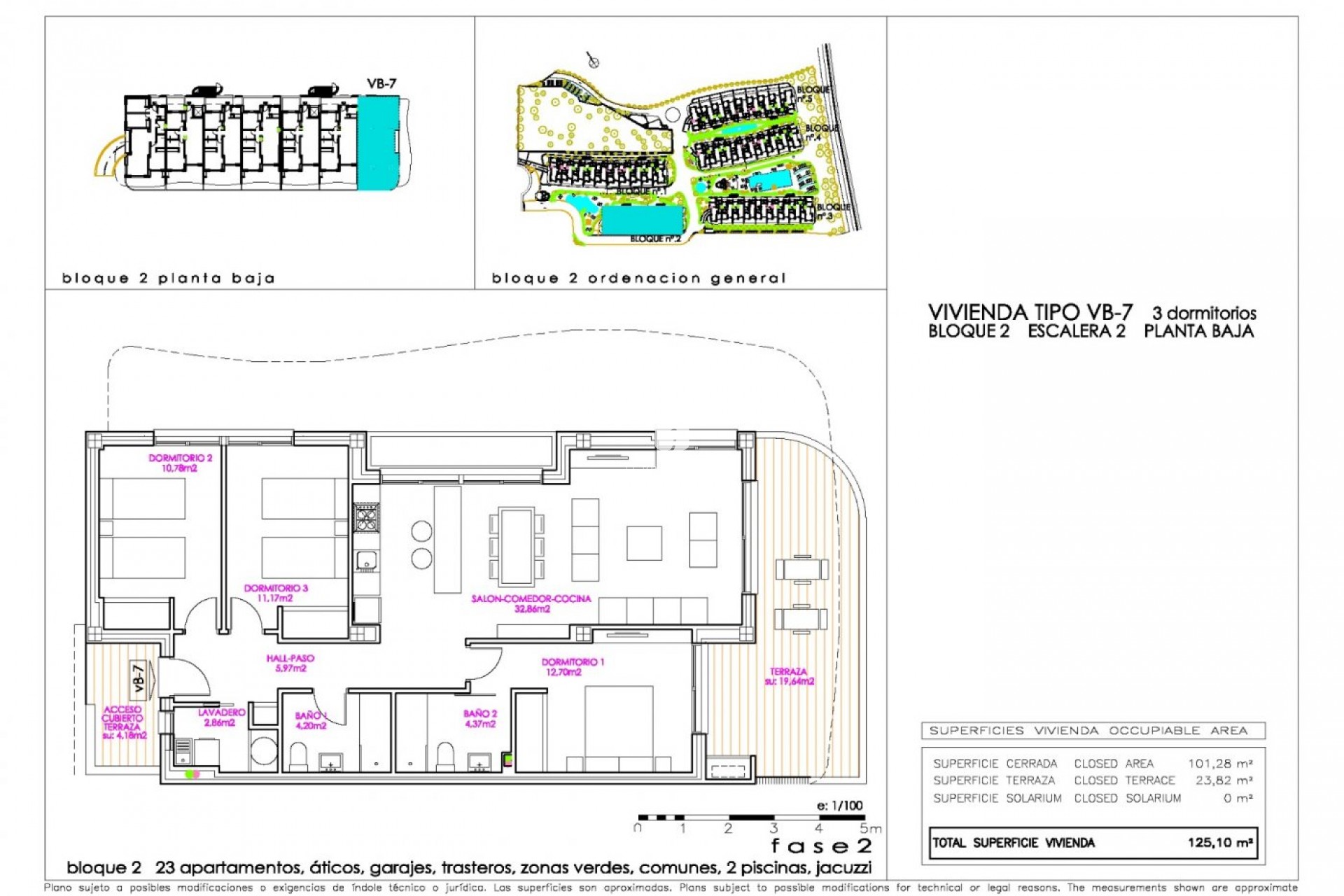
  • Metros
    99m2
  • Habitaciones
    3
  • Baños
    2
  • Piscina

Descripción

Características

Habitaciones: 3
Baños: 2
Construidos: 99m2
Piscina:
Calificación energética: B
Location: Coastal, Urbanisation
Near Trees
Useable Build Space: 90 Msq.
Terrace: 23 Msq.
Parking - Space
Beach: 500 Meters
Storage / Trastero
Garden
Gated
Number of Parking Spaces: 1
Near Schools
Near Commercial Center
Air Conditioning: Pre-Installed
Double Bedrooms: 3
Elevator/Lift
Communal Pool
Near Bus Route

Localización

JJ Properties Logo

Pedir información

Responsable del tratamiento: Jose Joaquín García López, Finalidad del tratamiento: Gestión y control de los servicios ofrecidos a través de la página Web de Servicios inmobiliarios, Envío de información a traves de newsletter y otros, Legitimación: Por consentimiento, Destinatarios: No se cederan los datos, salvo para elaborar contabilidad, Derechos de las personas interesadas: Acceder, rectificar y suprimir los datos, solicitar la portabilidad de los mismos, oponerse altratamiento y solicitar la limitación de éste, Procedencia de los datos: El Propio interesado, Información Adicional: Puede consultarse la información adicional y detallada sobre protección de datos Aquí.

Ver todas las propiedades

WhatsApp