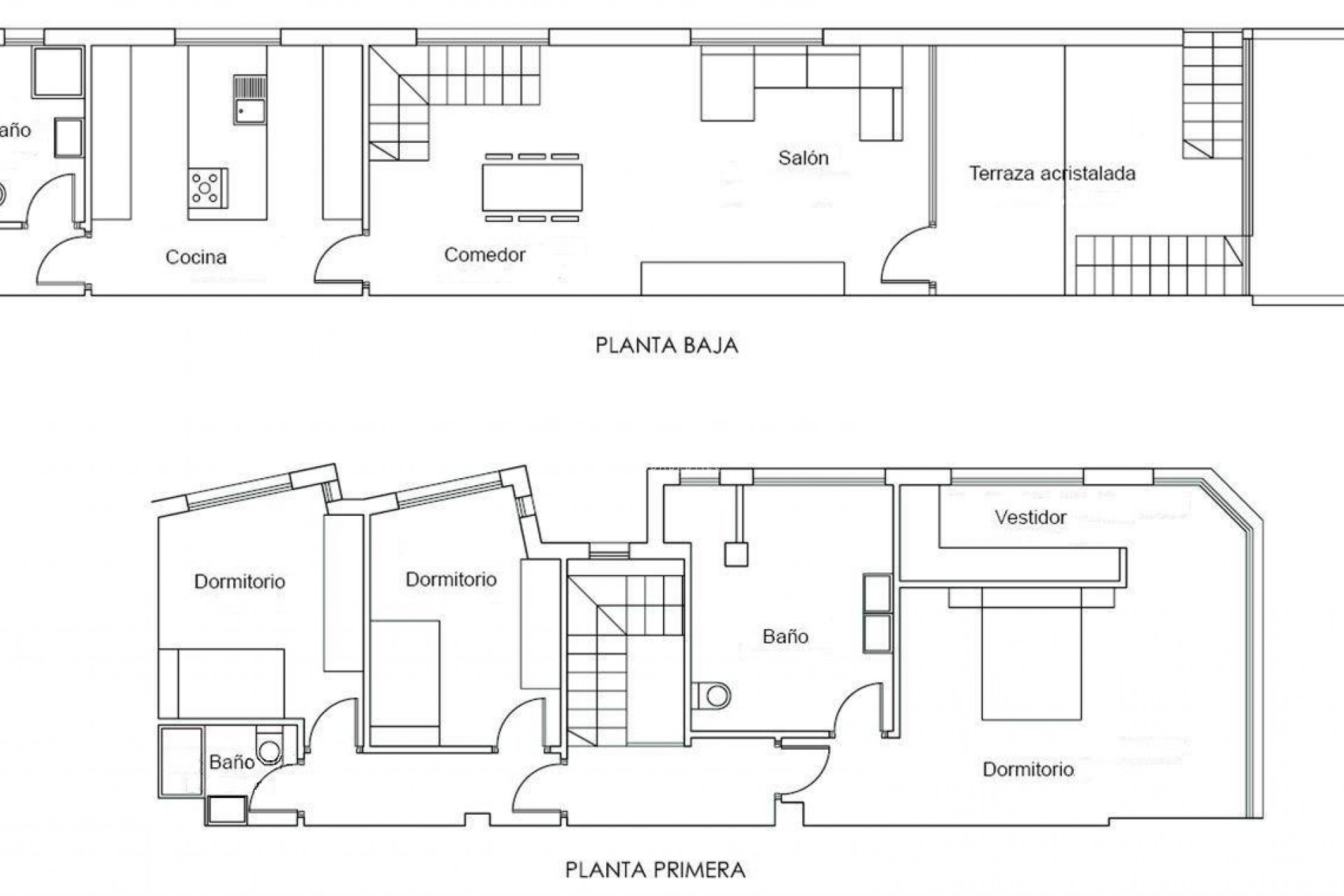
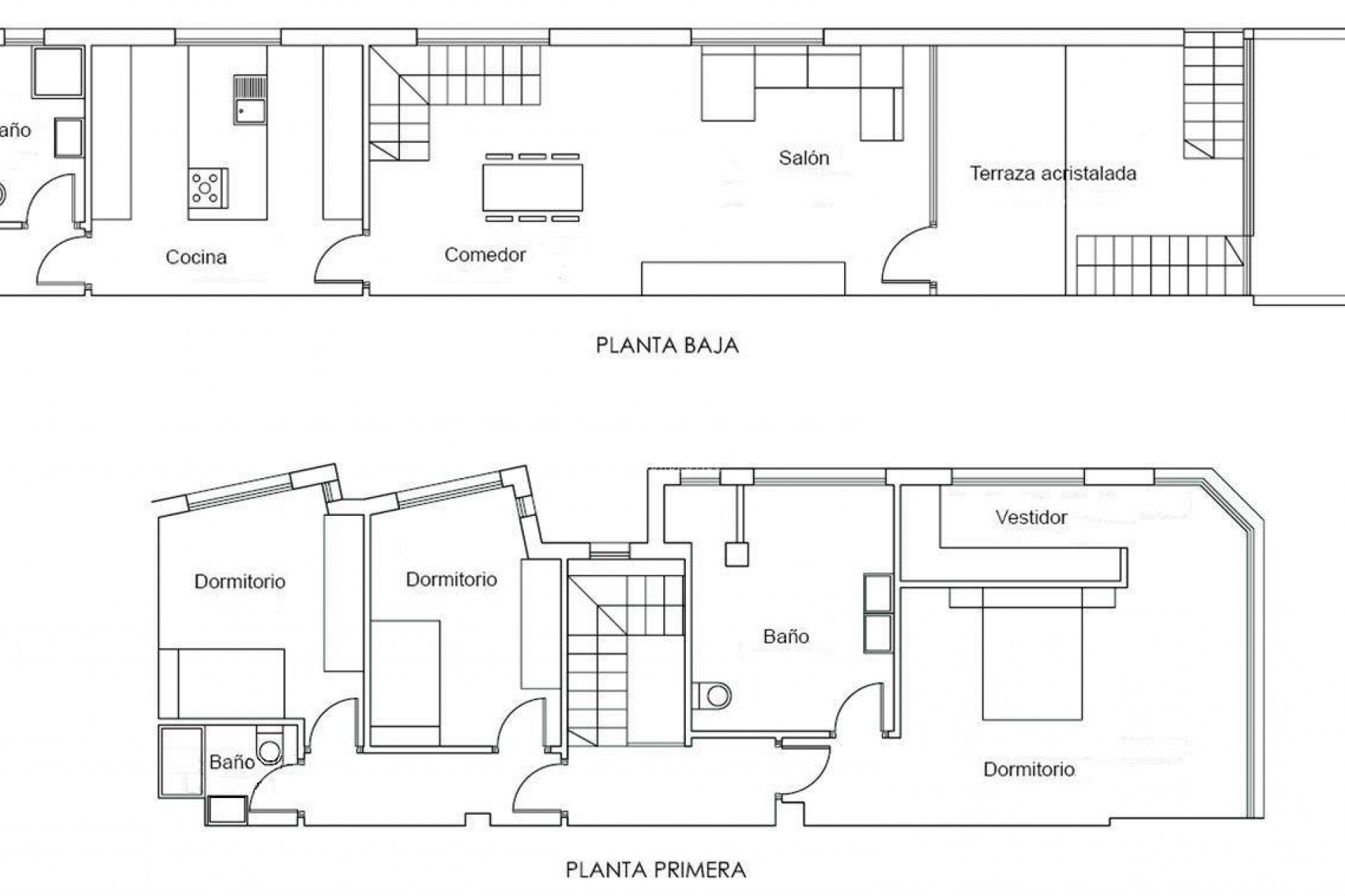
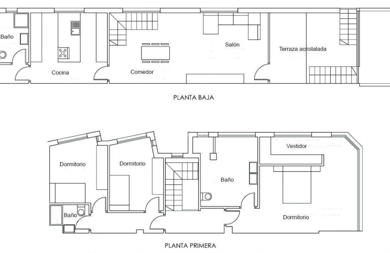
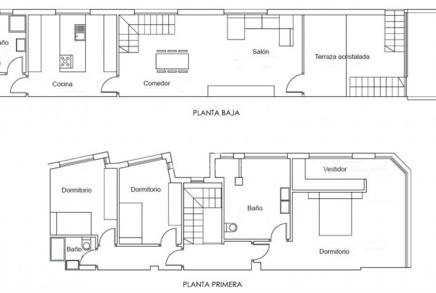
Dúplex en Primera Línea con Vistas al Mar, Terrazas! Amplio y luminoso dúplex con entrada privada, varias terrazas y vistas espectaculares al mar. Situado en primera línea frente a Playa del Cura, a solo unos pasos de la arena. Parking incluido en el precio. En la planta baja: terraza cubierta ideal para el invierno, gran terraza exterior de 20 m², salón-comedor, cocina equipada con isla, un dormitorio y baño completo con ducha. En la planta superior: dormitorio principal con cama king size, baño en suite con ducha y bañera, y un vestidor muy luminoso con ventana. Además, dos dormitorios más y otro baño con ducha. Se vende amueblado, con aire acondicionado y en excelente estado — ideal para vivir todo el año o disfrutar de vacaciones junto al mar. Ventajas clave: – Primera línea frente al mar – Entrada independiente y dos plantas – 4 dormitorios, 3 baños – Dormitorio principal con baño y vestidor con ventana – Terrazas soleadas a pocos metros de la playa – Parking opcional (+20 000 euros) – Completamente amueblado ¡No pierdas esta oportunidad única! Contáctanos hoy para más información o para agendar una visita.
Esta información que se proporciona aquí está sujeta a errores y no forma parte de ningún contrato. La oferta se puede cambiar o retirar sin previo aviso. Los precios no incluyen los costes de compra
Teléfono
Móvil
©JJ Properties. Reservados todos los derechos · Nota legal · Privacidad · Cookies · Mapa Web
CRM & Web design: Mediaelx
En primer lugar, gracias por contactarnos.
Hemos recibido su solicitud con respecto a la referencia de propiedad:C-93656. Uno de nuestros agentes se pondrá en contacto con usted lo antes posible.
En primer lugar, gracias por contactarnos.
Hemos recibido una solicitud de informe si baja el precio de la propiedad con la referencia: C-93656
Mientras tanto, eche un vistazo a esta selección de propiedades similares que podrían ser de su interés: