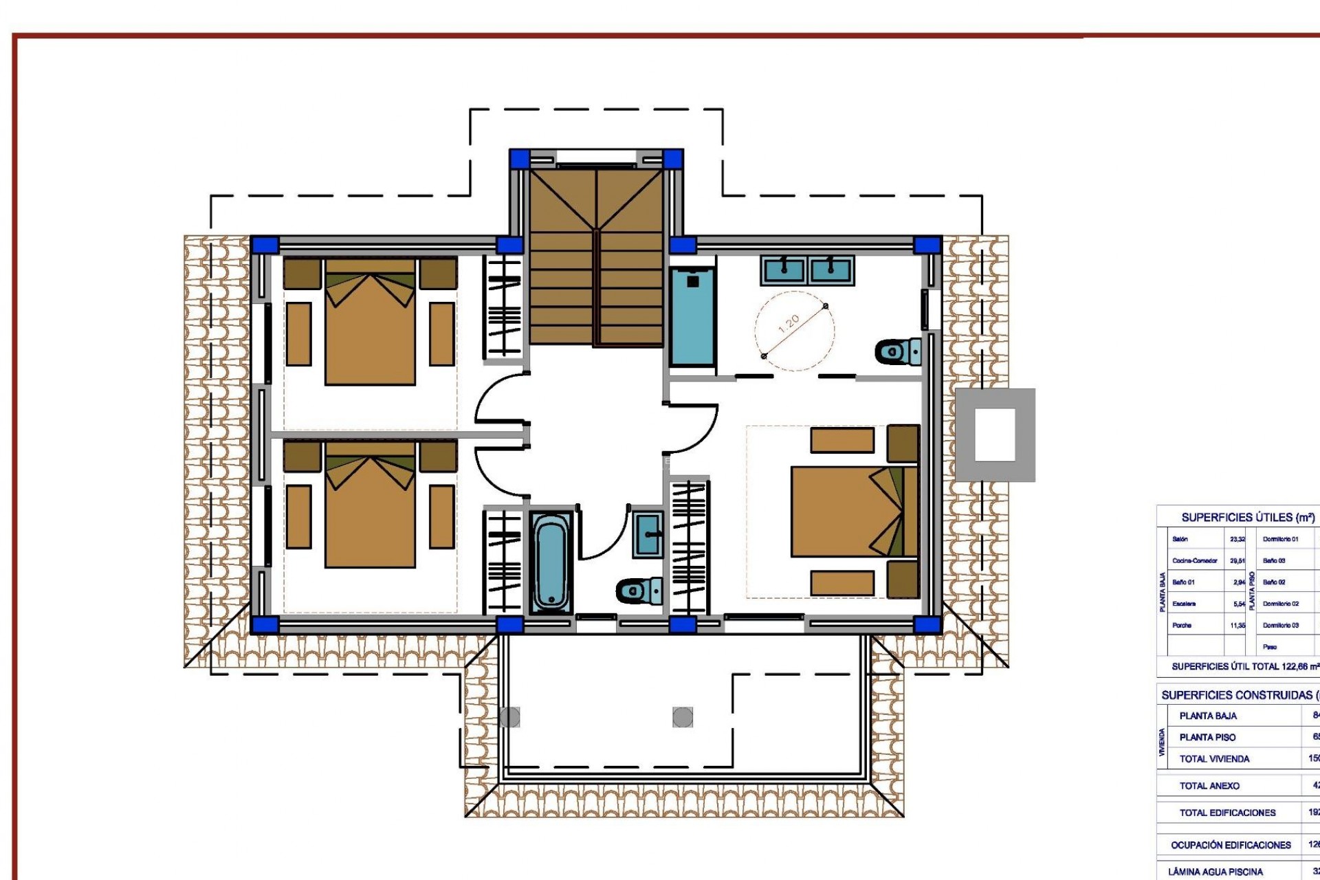
VILLAS NEUVES A PINOSO Vous pouvez choisir des villas avec des touches espagnoles traditionnelles ou des finitions super modernes, lumineuses et propres. Différents terrains constructibles légaux sont disponibles (rustiques avec un minimum de 10.000 m2), certains à quelques pas de la ville, d'autres totalement privés et les plus populaires sont à 5-10 minutes en voiture d'une ville. Nous avons un terrain pour tous les goûts, tous avec une vue imprenable et tous avec l'eau et l'électricité incluses dans le prix et l'internet à haut débit disponible. Les maisons sont construites par le plus grand et le meilleur constructeur de la région et utilisent des matériaux de qualité supérieure pour une finition parfaite. Toutes les maisons comprennent une terrasse de 2m en béton matricé autour de la piscine (couleur et motif au choix), 1m autour de la maison, une entrée fermée, une clôture de 3.000 m2, un système de climatisation pré-installé, une cuisine standard, une porte de sécurité, des fenêtres allemandes oscillo-battantes (ou coulissantes si vous préférez), une cheminée intégrée, une pré-installation pour la télévision et l'internet, une allée en gravier plus quelques mètres autour de la maison, une fosse septique. Les salles de bains comprennent une colonne de douche, un receveur de douche ou une baignoire, des lavabos (plusieurs couleurs au choix) avec éviers, robinets et miroirs, ainsi qu'un grand choix de carrelages muraux. Grand choix de carreaux de sol en céramique, différentes couleurs, effet bois, etc. Les cuisines comprennent des armoires avec portes et poignées standard, conformément aux plans fournis, un évier et un robinet en acier inoxydable, une pré-installation pour le four, le lave-vaisselle et la hotte aspirante. Différents plans de travail en granit sont inclus dans le budget, d'autres plans de travail en pierre sont disponibles en supplément. Les produits blancs ne sont pas inclus. Escalier en marbre (crème, blanc ou gris) et garde-corps inclus, plus garde-corps pour le porche d'entrée. Grande fenêtre en verre fixe sur l'escalier pour plus de lumière. Choix du carrelage et des marches de la piscine. Choix du granit pour les marches extérieures de la maison et les appuis de fenêtre. Vous pouvez personnaliser la maison à votre guise, la plupart des modifications internes sont gratuites, les maisons peuvent être agrandies et nous pouvons même construire votre propre design. Les maisons peuvent être agrandies et nous pouvons même construire votre propre projet. Vous pouvez opter pour une plus grande piscine, un garage simple ou double, une maison d'amis, etc. moyennant un coût supplémentaire. La belle ville prospère de Pinoso se trouve à environ 45 minutes d'Alicante et des plages blanches de la Costa Blanca et à proximité de la frontière entre Murcie et Alicante Elle compte un peu moins de 8 000 habitants. Pinoso, également connue sous le nom de El Pinos, doit son nom aux pins qui couvrent les chaînes de montagnes de la région. Pinoso offre un style de vie rural espagnol, sans feux de circulation, pratiquement sans trafic, les seuls embouteillages étant causés par les tracteurs qui transportent les raisins à la Bodega. Les champs sont plantés de vignes, d'amandes et d'olives. En février, les champs se couvrent de fleurs d'amandiers roses. Pinoso compte de nombreux bars, restaurants et magasins, un nouveau centre médical ouvert 24 heures sur 24, des dentistes, deux écoles primaires et une école secondaire, un théâtre. Il y a un excellent centre sportif avec des piscines extérieures, des courts de tennis, des terrains de football et un gymnase, une bibliothèque et de nombreuses autres installations, dont une belle aire de pique-nique au milieu des pins, avec des barbecues, des sièges et de l'eau courante. 270