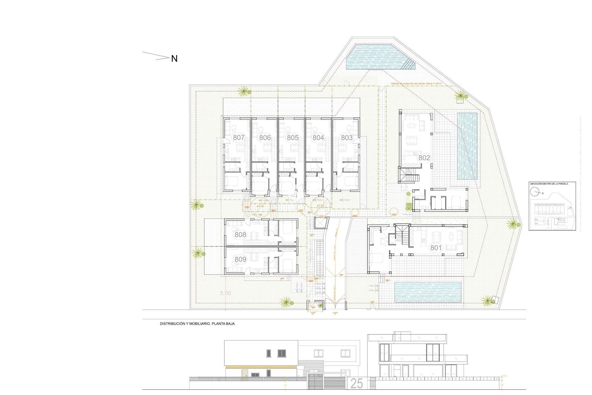
Exclusief nieuwbouwproject in Orihuela Costa Bevoorrechte locatie in het hart van de Costa Blanca Dit moderne gesloten wooncomplex ligt in Orihuela Costa, een van de meest gewilde gebieden van de Costa Blanca, op slechts 4 km van de stranden van Orihuela Costa. Dankzij de uitstekende ligging kun je het hele jaar door genieten van de mediterrane zon, met toegang tot een breed scala aan vrijetijdsbestedingen, golf en diensten. Op slechts 5 minuten rijden vind je de golfbaan van Villamartin en het winkelcentrum La Zenia Boulevard, het grootste in de provincie Alicante, met meer dan 150 winkels, restaurants en uitgaansgebieden. Modern ontwerp en exclusieve huizen Dit project biedt een selectie nieuwbouwwoningen die zijn ontworpen volgens de hoogste kwaliteits- en comfortnormen: 7 herenhuizen van 2 en 3 slaapkamers met toegang tot een gemeenschappelijk zwembad. 2 vrijstaande villa's met 3 slaapkamers en 3 badkamers, elk met privézwembad. Optioneel: ondergrondse parkeerplaatsen en bergingen tegen meerprijs. Exclusieve kwaliteiten en kenmerken Elke woning is ontworpen met een moderne en functionele benadering, inclusief: Aangelegde exterieurs met kunstgras naast het zwembad. Aerothermische verwarming voor meer energie-efficiëntie. Keuken met kwarts ontbijtbar, zithoek en 50 cm metalen gootsteen. Trap met glazen en roestvrij stalen leuning. Volledig ingerichte badkamers, met bovenkasten, spiegel en douchescherm. Pre-installatie voor gekanaliseerde airconditioning. Ingerichte kasten in elke slaapkamer, met schuifdeuren en zacht sluitingssysteem. Beveiligde toegangsdeur voor gemoedsrust. Nabijheid van bezienswaardigheden Punta Prima strand - 4 km. Villamartin Golfbaan - 5 km. Winkelcentrum La Zenia Boulevard - 5 km. Torrevieja centrum - 10 km. Luchthaven Alicante - 40 minuten. Luchthaven Murcia-Corvera - 1 uur. Ervaar de mediterrane levensstijl Dit exclusieve wooncomplex is ideaal voor wie op zoek is naar een moderne woning aan de Costa Blanca, met toegang tot stranden, golf en alle voorzieningen. Mis deze unieke kans niet en neem vandaag nog contact met ons op voor meer informatie of om een bezichtiging te regelen. 270
Deze informatie is hier onderhevig aan fouten en maakt geen deel uit van een contract. De aanbieding kan zonder kennisgeving worden gewijzigd of ingetrokken. Prijzen zijn exclusief aankoopkosten.
Telefoon
Mobiel
Allereerst bedankt dat je contact met ons hebt opgenomen.
We hebben uw verzoek met betrekking tot de eigenschap referentie ontvangen:NB-39751. Een van onze agenten neemt zo snel mogelijk contact met u op.
Allereerst bedankt dat je contact met ons hebt opgenomen.
We hebben een aanvraag voor een rapport ontvangen als u de prijs van het onroerend goed met de referentie verlaagt: NB-39751
Bekijk in de tussentijd eens een selectie van vergelijkbare woningen die voor u van belang kunnen zijn: