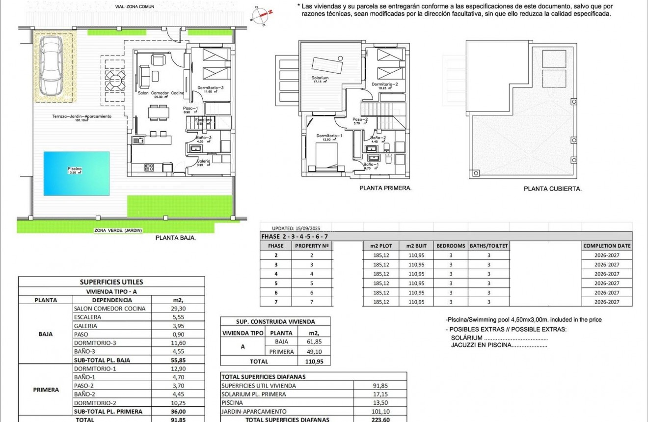
Moderne nieuwbouwwilla's in La Herrada Los Montesinos met privézwembad Exclusief woonproject in een rustige omgeving Deze exclusieve ontwikkeling van 16 moderne villa's ligt in de prestigieuze urbanisatie La Herrada in Los Montesinos en biedt privacy, comfort en een uitstekende levenskwaliteit. La Herrada staat bekend om zijn rustige woonomgeving, de nabijheid van dagelijkse voorzieningen en de bevoorrechte ligging tussen de beroemde zoutmeren van Torrevieja en La Mata. Het is een ideale locatie voor wie op zoek is naar een ontspannen en gezonde mediterrane levensstijl in het zuiden van de Costa Blanca. Eigentijds ontwerp met geoptimaliseerde binnenruimtes Elke villa heeft 110 m² goed geplande woonruimte, verdeeld over twee verdiepingen, ontworpen om natuurlijk licht en functionaliteit te maximaliseren. De woningen zijn gebouwd op percelen vanaf 185 m² en bieden royale buitenruimtes die perfect zijn om te zonnebaden, te entertainen of te ontspannen bij het privézwembad. Comfortabele indeling over twee verdiepingen De begane grond beschikt over een open woonkamer met een volledig geïntegreerde keuken en directe toegang tot de tuin en het zwembad. Op deze verdieping bevinden zich ook een slaapkamer, een complete badkamer en een handige wasruimte. Op de bovenverdieping zijn er twee ruime slaapkamers, elk met een eigen badkamer, waarvan één en suite. Beide slaapkamers hebben toegang tot een privé terras van 17 m². Voor wie nog meer buitenruimte wil, is er tegen meerprijs een optioneel solarium op het dak beschikbaar. Hoogwaardige afwerking en moderne voorzieningen De villa's zijn voorzien van hoogwaardige afwerkingen, zoals badkamermeubilair, spiegels, doucheschermen en vloerverwarming in alle badkamers. Er is een voorinstallatie voor airconditioning, een gemotoriseerde toegangspoort voor voertuigen, een eigen parkeerplaats op het perceel en een afgesloten toegang tot de woonwijk via een eigen interne straat. Toplocatie dicht bij belangrijke voorzieningen en attracties Stranden van Guardamar en Torrevieja op 9 km La Marquesa Golf, La Finca Golf en Vistabella Golf binnen 5 km Luchthaven Alicante op 29 km Natuurparken, zoutmeren, fietsroutes en wandelpaden in de buurt Comfortabel wonen in het hart van de Costa Blanca Deze nieuwbouwwoningen in Los Montesinos bieden de perfecte combinatie van modern comfort, een natuurlijke omgeving en uitstekende bereikbaarheid. Of u nu op zoek bent naar een permanente woning of een vakantiehuis, dit project biedt alles wat u nodig heeft om te genieten van een rustige en comfortabele mediterrane levensstijl. Neem vandaag nog contact met ons op om een bezichtiging te regelen en uw nieuwe woning in La Herrada te bemachtigen. 270