Torrevieja · Los Balcones Bungalow · Nieuwbouw Woningen · #NB-12160

340.000€

Torrevieja · Los Balcones Bungalow · Nieuwbouw Woningen · #NB-12160

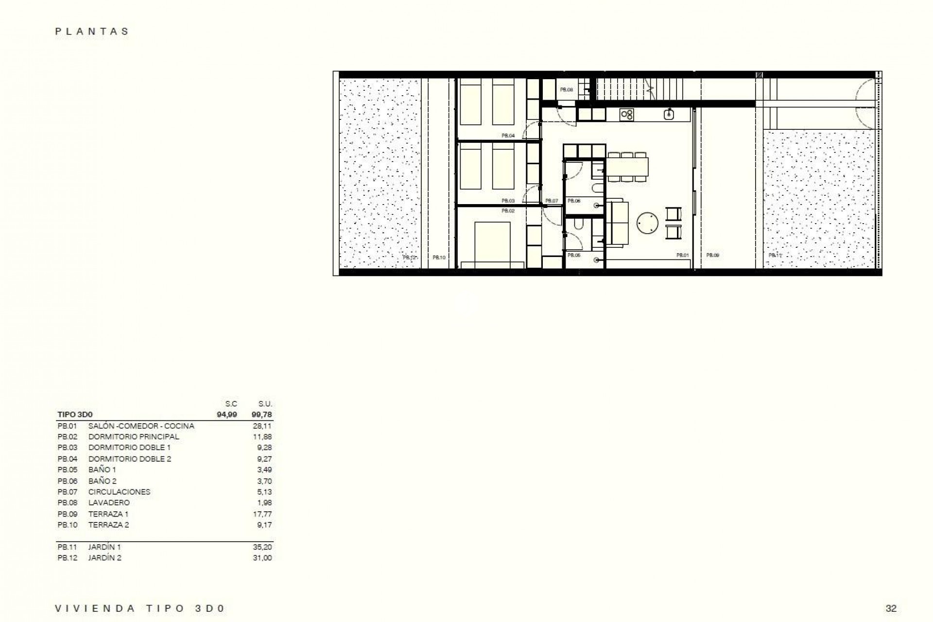
  • 99m2
  • 76m2
  • Slaapkamers
    3
  • Badkamers
    2
  • Zwembad
    Ja

Beschrijving

Kenmerken

Slaapkamers: 3
Badkamers: 2
Gebouwd: 99m2
Plot: 76m2
Zwembad: Ja
Energy Rating: B
Garden
Gated
Number of Parking Spaces: 1
Near Golf / Golf Resort Property
Near Schools
Near Commercial Center
Air Conditioning: Pre-Installed
Double Bedrooms: 3
Communal Pool
Location: Coastal, Urbanisation
Beach: 3500 Meters
Useable Build Space: 94 Msq.
Terrace: 27 Msq.
Parking - Space
Storage / Trastero

Plaats

JJ Properties Logo

Vraag voor informatie

Responsable del tratamiento: Jose Joaquín García López, Finalidad del tratamiento: Gestión y control de los servicios ofrecidos a través de la página Web de Servicios inmobiliarios, Envío de información a traves de newsletter y otros, Legitimación: Por consentimiento, Destinatarios: No se cederan los datos, salvo para elaborar contabilidad, Derechos de las personas interesadas: Acceder, rectificar y suprimir los datos, solicitar la portabilidad de los mismos, oponerse altratamiento y solicitar la limitación de éste, Procedencia de los datos: El Propio interesado, Información Adicional: Puede consultarse la información adicional y detallada sobre protección de datos Aquí.

Bekijk alle woningen

WhatsApp