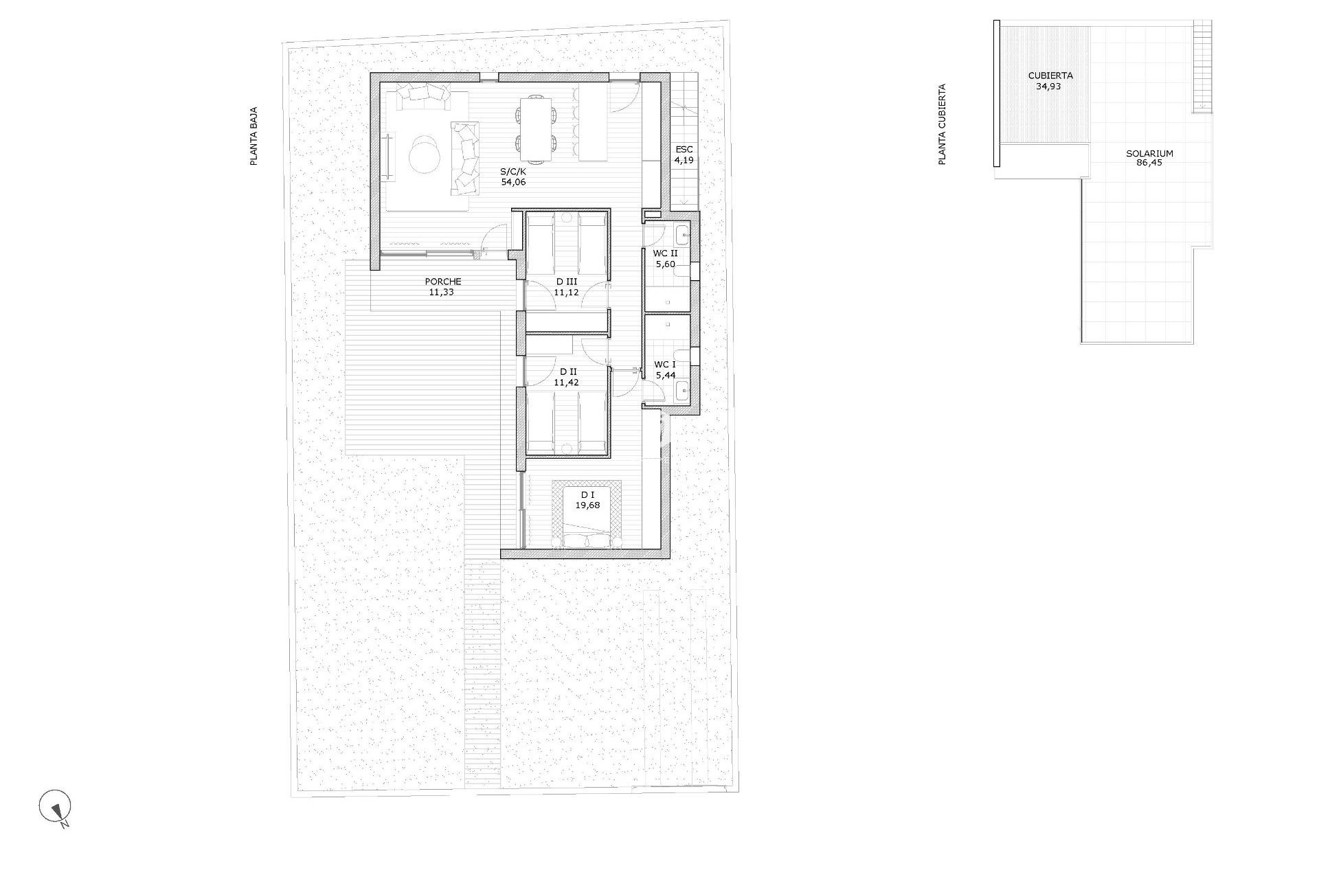
NIEUWBOUW VILLA'S IN SAN MIGUEL DE SALINAS Nieuwbouw vrijstaande villa's gelegen in San Miguel de Salinas. Moderne villa's gemaakt om te genieten van de Spaanse zon. Villa's gebouwd over 1 verdieping, met 3 slaapkamers, 2 badkamers, open keuken met ruime woonkamer, inbouwkasten, terras en privé solarium. Elke villa heeft een onafhankelijk perceel met parkeerplaats. Een optie voor een privézwembad tegen een meerprijs. San Miguel de Salinas ligt dicht bij de golfbanen Las Colinas en Campoamor en biedt een uitzonderlijk uitzicht op de lagunes van Torrevieja en La Mata. San Miguel de Salinas is een gemeente in de Valenciaanse Gemeenschap, Spanje. Het ligt in het zuiden van de provincie Alicante, in de regio Vega Baja del Segura vlakbij de regio Murcia. Het vliegveld van Alicante ligt op 35 minuten rijden en het vliegveld van Murcias Corvera ligt op ongeveer 1 uur rijden. 270
Deze informatie is hier onderhevig aan fouten en maakt geen deel uit van een contract. De aanbieding kan zonder kennisgeving worden gewijzigd of ingetrokken. Prijzen zijn exclusief aankoopkosten.
Telefoon
Mobiel
Allereerst bedankt dat je contact met ons hebt opgenomen.
We hebben uw verzoek met betrekking tot de eigenschap referentie ontvangen:NB-90128. Een van onze agenten neemt zo snel mogelijk contact met u op.
Allereerst bedankt dat je contact met ons hebt opgenomen.
We hebben een aanvraag voor een rapport ontvangen als u de prijs van het onroerend goed met de referentie verlaagt: NB-90128
Bekijk in de tussentijd eens een selectie van vergelijkbare woningen die voor u van belang kunnen zijn: