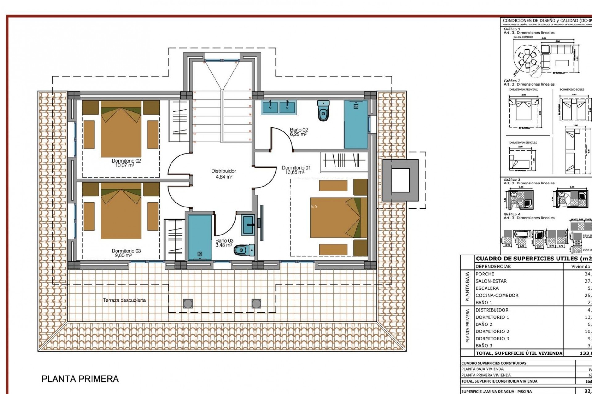
RYNEK PIERWOTNY WILLE W PINOSO Możesz wybrać wille z tradycyjnymi hiszpańskimi akcentami lub super nowoczesnym wykończeniem, jasne i czyste. Dostępne są różne legalne działki budowlane (rustykalne o minimalnej powierzchni 10.000 m2), niektóre w odległości spaceru od miasta, niektóre całkowicie prywatne, a nasze najpopularniejsze znajdują się w odległości 5-10 minut jazdy od miasta. Mamy działkę na każdy gust, wszystkie z niesamowitymi widokami i wszystkie mają wodę sieciową + elektryczność wliczoną w cenę oraz szybki internet. Pochodzą od największego i najlepszego budowniczego w okolicy i wykorzystują najwyższej jakości materiały do doskonałego wykończenia. Wszystkie domy obejmują 2-metrowy betonowy taras wokół basenu (kolor i wzór do wyboru), 1 m wokół domu, ogrodzone wejście, ogrodzenie o powierzchni 3.000 m2, wstępnie zainstalowaną klimatyzację kanałową, standardową kuchnię, drzwi antywłamaniowe, niemieckie okna uchylno-rozwierane (lub przesuwne, jeśli wolisz), wbudowany kominek i komin, wstępna instalacja do telewizji i internetu, żwirowy podjazd plus kilka metrów wokół domu, szambo. Łazienki zawierają kolumnę prysznicową, brodzik lub wannę, szafki pod umywalki (różne kolory do wyboru) ze zlewami, kranami i lustrami oraz duży wybór płytek ściennych. Szeroki wybór ceramicznych płytek podłogowych, różne kolory, efekt drewna itp. Kuchnie obejmują szafki ze standardowymi drzwiami i uchwytami, zgodnie z dostarczonymi planami, zlewozmywak ze stali nierdzewnej i kran, wstępną instalację piekarnika, zmywarki, wyciągu. Różne granitowe blaty do wyboru wliczone w budżet, inne kamienne blaty dostępne jako dodatki. Sprzęt AGD nie jest wliczony w cenę. Marmurowe schody (kremowe, białe lub szare) i balustrady wliczone w cenę, plus balustrady na werandzie. Duże szklane okno na klatce schodowej zapewniające dodatkowe światło. Wybór projektu płytek i schodów do basenu. Wybór granitu na zewnętrzne stopnie domów i parapety. Dom można dostosować do własnych potrzeb, większość zmian wewnętrznych jest bezpłatna, domy można rozbudować, a my możemy nawet zbudować własny projekt. Za dodatkową opłatą można rozbudować dom o większy basen, pojedynczy lub podwójny garaż, pensjonat itp. Piękne i kwitnące miasto Pinoso znajduje się około 45 minut w głąb lądu od Alicante i białych plaż Costa Blanca oraz w pobliżu granicy Murcji i Alicante Ma populację nieco poniżej 8,000. Pinoso, znane również jako El Pinos, zawdzięcza swoją nazwę sosnom, które pokrywają pasma górskie. Pinoso zapewnia hiszpański wiejski styl życia, bez sygnalizacji świetlnej, prawie bez ruchu ulicznego, praktycznie jedyne korki są spowodowane przez traktory przewożące winogrona do Bodega. Pola obsadzone są winoroślą, migdałami i oliwkami. W lutym pola są wypełnione różowym kwiatem migdałowca. W Pinoso znajduje się wiele barów, restauracji i sklepów, nowe całodobowe centrum medyczne, dentyści, dwie szkoły podstawowe i jedna szkoła średnia, teatr. Znajduje się tu doskonałe centrum sportowe z odkrytymi basenami, kortami tenisowymi, boiskami do piłki nożnej i salą gimnastyczną, biblioteką i wieloma innymi udogodnieniami, w tym pięknym terenem piknikowym wśród sosen, wyposażonym w grille, miejsca do siedzenia i bieżącą wodę. 270