Aspe · Poligono 19 Villa · Nowy budynek · #NB-73295

Aspe · Poligono 19 Villa · Nowy budynek · #NB-73295

  • Metry
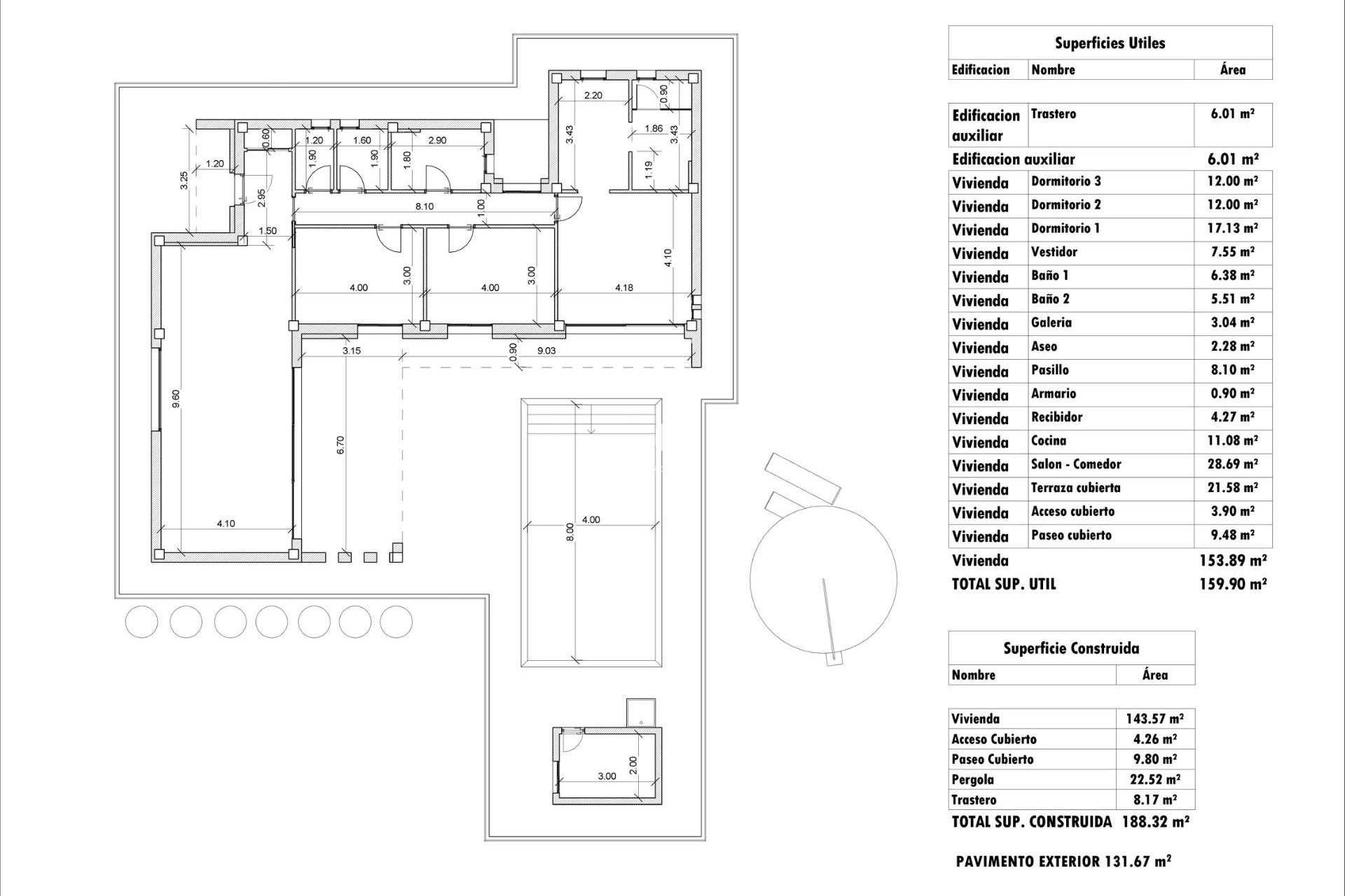
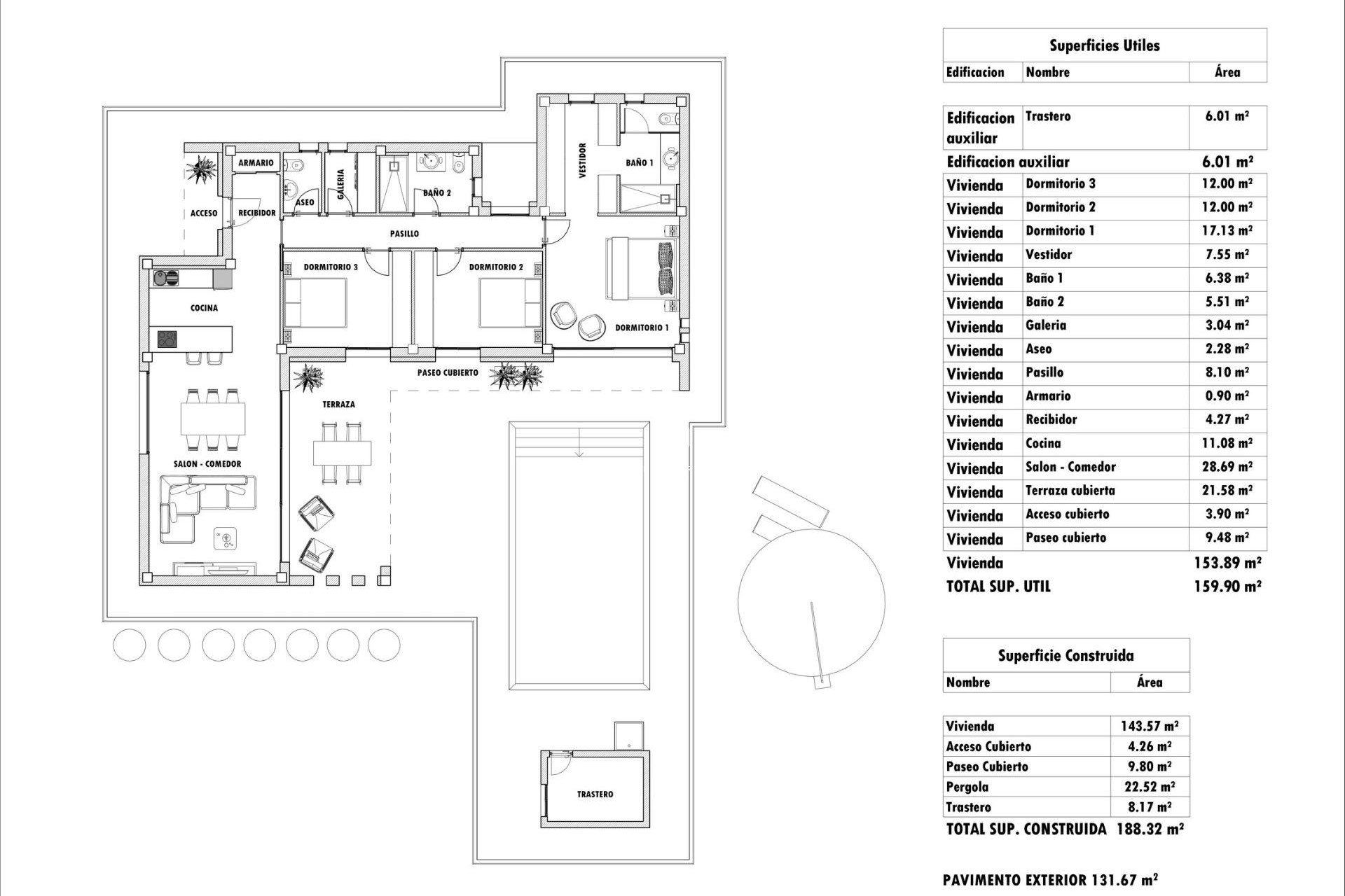
    188m2
  • Grunt
    13.172m2
  • Sypialnie
    3
  • Łazienki
    3
  • Basen
    Tak

Opis

Szczegóły oferty

Sypialnie: 3
Łazienki: 3
Powierzchnia: 188m2
Działka: 13.172m2
Basen: Tak
Ocena energetyczna: B
Storage / Trastero
Prywatny basen
Garden
Gated
Number of Parking Spaces: 1
Near Schools
Air Conditioning: Pre-Installed
Double Bedrooms: 3
Parking - Space
Beach: 25000 Meters
Location: Rural, Mountain
Terrace: 36 Msq.
Useable Build Space: 159 Msq.

Lokalizacja

JJ Properties Logo

Zapytaj o info

Responsable del tratamiento: Jose Joaquín García López, Finalidad del tratamiento: Gestión y control de los servicios ofrecidos a través de la página Web de Servicios inmobiliarios, Envío de información a traves de newsletter y otros, Legitimación: Por consentimiento, Destinatarios: No se cederan los datos, salvo para elaborar contabilidad, Derechos de las personas interesadas: Acceder, rectificar y suprimir los datos, solicitar la portabilidad de los mismos, oponerse altratamiento y solicitar la limitación de éste, Procedencia de los datos: El Propio interesado, Información Adicional: Puede consultarse la información adicional y detallada sobre protección de datos Aquí.

Wyświetl wszystkie nieruchomości

WhatsApp